Inhalt
ToggleNicht nur Häuser wurden hier gebaut, sondern ein neuer Typ Mensch:
frei, im Licht und im Einklang mit der Form.
Eine Beschreibung der Gartenstadt Hellerau
Allgemeines
Die visuelle Verbindung zum Außenbereich übt nachweislich zahlreiche positive Auswirkungen auf die Arbeitenden und sonstigen Insassen der Räume aus, zu denen eine verbesserte subjektive Gesundheit, gesteigertes Wohlbefinden, positivere Emotionen und eine bessere kognitive Leistungsfähigkeit, höhere Zufriedenheit mit der Umgebung, bessere Behaglichkeit sowie Stressabbau gehören.
Diese Wirkungen sind durch zahlreiche wissenschaftliche Studien ermittelt und nachgewiesen worden. Eine hatte ich am 22. Januar 2025 exemplarisch dargestellt (Licht macht sichtbar, Grün macht lebendig). Andere wurden am Tag davor dargestellt (Wunden, die Licht heilt). Im letzten Beitrag wurden medizinische Heilwirkungen von künstlichen Lichtquellen wie auch „Heilung Jenseits der Physik – Heilende Aussichten“ besprochen. Mit den Aussichten war die Sichtverbindung gemeint.
Dieses Thema wurde von meinem Doktorvater und dem Kollegen Georg Roessler Ende der 1960er Jahre untersucht und wurde 1975 in der Arbeitsstättenverordnung zu einer gesetzlichen Bestimmung. Nachzulesen in z.B. Kompensation statt Kapitulation – Eine kurze Geschichte der Sichtverbindung nach außen. Da das Wort allein wenig aussagt, hat das Arbeitsministerium die erforderliche Qualität der Sichtverbindung in einer Arbeitsstättenrichtlinie ASR 7.1 konkretisiert. Die aktuelle Fassung heißt ASR A3.4. bei deren Erarbeitung ich mitgewirkt habe. (Ausgabe Mai 2023 download hier.)
Der Sinn der Sichtverbindung nach außen ist nicht, dass sich Arbeitnehmende vor das Fenster setzen und die Aussicht genießen. Es geht darum, sich in der Zeit und im Raum zu orientieren und nicht eingeschlossen zu fühlen. Deswegen wird man in Arbeitsräumen so gut wie niemanden finden, dessen Arbeitsplatz zum Fenster gerichtet ist.
In dem Beitrag Kompensation statt … wird auch dargelegt, warum man nicht immer eine wunderbare Aussicht auf einen Paradiesgarten realisieren kann und was man ggf. tun kann bzw. muss. Wenn man eine Wirkung kompensieren will, muss man sich im Klaren darüber sein, wann und wie sich der Aufwand lohnt. Daher der heutige Beitrag über die „Qualität“ der Sichtverbindung.
Welche Faktoren sind relevant?
In einem Workshop von IES wurde das Thema Sichtverbindung ausführlich behandelt (hier) (Anm.: Der Bericht ist ein Werk von über 40 Autoren, daher entfällt das längere Zitat. Unter dem gegebenen Link ist der komplette Beitrag abrufbar.) Mehrere Passagen daraus habe ich übersetzt. Ich empfehle, den Beitrag komplett zu lesen.
In Europa gilt die Norm DIN EN 17037:2022-5, die Antworten auf diverse Fragen gibt, die die Autoren diskutiert haben. Die Norm beschränkt sich nicht auf den Ausblick, vielmehr behandelt sie die gesamte Tageslichtversorgung. Das Kriterium “View Out” (als "Aussicht” übersetzt) nach DIN EN 17037 ist eines der spannendsten Kapitel, weil es die psychologische Qualität eines Raums bewertet. Es geht nicht nur darum, dass Licht reinkommt, sondern dass der Mensch eine visuelle Verbindung zur Umwelt hat.
Definition
Die Autoren erklären ihr Ziel wie folgt:
“Die Aussicht ist ein wünschenswerter Faktor, der in den Prozess einbezogen werden sollte, und die Definition der Qualität der Fensterausblickqualität ist der erste Schritt zu einer solchen Integration. In dem Workshop haben wir die Qualität der Fensteraussicht als die Qualität der visuellen Verbindung zum Außenbereich definiert, die die Gebäudenutzer zufriedenstellt. “
Das Konzept der Qualität der Sichtverbindung ist subjektiv, da es vom Betrachter abhängt und daher von kontextuellen Faktoren beeinflusst wird. Diese Faktoren können physische Eigenschaften des Kontexts (z. B. Klima, Breitengrad, umgebende Landschaft und bebaute Umgebung) oder sozialbezogene Faktoren (z. B. Demografie und kulturelles Umfeld) sein. Somit ist der Begriff zwar im psychologischen Sinne definiert. Für eine Realisierung muss man allerdings zu physikalischen Größen greifen, was ja die deutsche Arbeitsstättenrichtlinie ASR 7.1 1976 getan hatte. Danach zählten zur Sichtverbindung nur durchsichtige Fenster (nicht durchscheinend) in Augenhöhe und nicht Dachoberlichter.
Die Richtigkeit des Konzepts wurde durch mehrere Gerichtsurteile bestätigt. Es ist ein psychologisches Konzept, das eng mit der Beleuchtung zusammenhängt.
Wichtige Faktoren
Inhalt: Der Inhalt bezieht sich auf die Summe der visuellen Merkmale, die in der Fensteransicht zu sehen sind. Fensteransichten, die Natur, drei horizontale Ebenen (d. h. Boden, Landschaft und Himmel), weit entfernte Objekte und Bewegung umfassen, werden oft als qualitativ hochwertiger angesehen.
Aussicht auf die Natur: Die Literatur zeigt, dass sich der Blick auf Grünflächen und Wasserlandschaften positiv auf Menschen auswirkt.
Von Menschen geschaffene Ansichten: Obwohl sich die vorhandene Literatur stark auf die positiven Auswirkungen einer natürlichen Aussicht konzentriert, werden Fensterausblicke, die ästhetisch ansprechende, vom Menschen geschaffene Elemente wie Kunst, Architektur oder Sehenswürdigkeiten enthalten, nur unzureichend berücksichtigt. Die Definition von Schönheit hat im Laufe der Geschichte zu Debatten unter Wissenschaftlern geführt , da sie von der vorherrschenden Kultur und der individuellen Erfahrung abhängt. Zu solchen Ansichten gehören auch simulierte Fenster.
Bewegung in den Ansichten: Dynamische Szenen ziehen mehr Aufmerksamkeit auf sich und werden oft gegenüber statischen Ansichten bevorzugt. Zu den dynamischen Merkmalen in Fensteransichten gehören menschliche Aktivitäten, natürliche Bewegungen (z. B. fallende Blätter) und wetterbedingte Aspekte wie vorbeiziehende Wolken und Tageslichteffekte. Solche Merkmale vermitteln den Gebäudenutzern ein Bewusstsein für ihre Umgebung und eine Verbindung zur Außenwelt. Es gibt sogar simulierte Himmel, die vorbeiziehende Wolken erzeugen. Sie sollen den Menschen den Eindruck vermitteln, draußen zu sitzen. Die erhoffte Wirkung: Im Büroalltag sollen Angestellte wach und konzentriert bleiben.
Zugang: Der Begriff „Zugang“ bezieht sich auf den Umfang der Aussicht, die ein Bewohner von seinem Standort aus hat. Er hängt von der geometrischen Beziehung zwischen den Fenstern und dem Bewohner im Raum ab.
Anzahl der für den Bewohner verfügbaren Ansichten: Basierend auf dem Design der Fenster (z. B. Größe, Seitenverhältnis) und der Position des Betrachters im Raum können Designer die Größe des Fensterausblicks berechnen.
Fassadenfunktionen: Wir müssen die verschiedenen Wirkungen der Fassaden verstehen, die sich auf die Klarheit der Aussicht auswirken können, wie z. B. Blendung, Überhitzung und Privatheit. Fenster haben nicht nur positive Effekte, sondern immer auch problematische Wirkungen, die gegen die positiven abgewogen werden müssen.
Wo liegen die Knackpunkte, was muss getan werden
Inhalt: In dem Workshop wurde dies so thematisiert: Es fehlen uns Richtlinien oder ein Konsens unter Forschern, um Designteams bei der Bewertung und Priorisierung der relevanten Aspekte zu unterstützen. Beispielsweise müssen wir uns mit der Frage befassen, ob unterschiedliche Formen der Natur oder die Einbeziehung natürlicher Elemente in Innenräumen (z. B. Atrien mit Bäumen) ähnliche Auswirkungen auf die Zufriedenheit der Nutzer haben. Diese Forschungsrichtung könnte besonders nützliche Informationen für die Bewertung der Aussicht von Gebäuden in dicht bebauten städtischen Umgebungen liefern.
Die Bebauungsdichte von urbanen Umgebungen ist ein enormer Wirtschaftsfaktor. Deswegen wurde in den 1960er Jahren für fensterlose Gebäude geworben. Das Bauordnungsrecht als wirksamster Faktor sichert das Bedürfnis zur Kommunikation mit der Umwelt über verschiedene Schutzziele ab. Dabei geht es vor allem um Licht, Luft und Sicht sowie den Schutz vor „Einmauerung“. Die Landesbauordnungen (BauO) sind dazu das wichtigste Werkzeug. Sie schreiben vor, dass vor den Außenwänden von Gebäuden Flächen von oberirdischen Gebäuden freizuhalten sind (§ 6 BauO der Länder).
Nach DIN EN 17037 sollte ein qualitativ hochwertiger Ausblick die Umwelt "strukturieren". Was hochwertig angesehen wird, wäre nach den Teilnehmern des Workshops Gegenstand künftiger Forschungsarbeit. DIN EN 17037 kategorisiert die relevanten Faktoren in gering – mittel – hoch. Oder sie kategorisiert die Anzahl der sichtbaren Ebenen (Himmel – Landschaft – Boden.
In dem Workshop wurde dies so thematisiert: Die Definition von Schönheit hat im Laufe der Geschichte immer wieder zu Debatten unter Wissenschaftlern geführt, da sie von der vorherrschenden Kultur und individuellen Erfahrungen abhängt. Die Frage, inwieweit von Menschen geschaffene Artefakte visuell ansprechend sind, ist äußerst komplex und erfordert einen multidisziplinären Ansatz, der beispielsweise die Designwissenschaften, Psychologie, Soziologie, Philosophie (Ästhetik) und Semiotik umfasst. Es geht letztendlich nicht um Schönheit, sondern um positive Wirkungen auf Rauminsassen, die man gezielt realisieren will, indem die Aussicht ästhetisch wirkt.
Was Bewegungen angeht, scheint die Wissenschaft heute weniger zu wissen als 1970. Heute wird ausgesagt: “Solche Merkmale vermitteln den Gebäudenutzern ein Bewusstsein für ihre Umgebung und eine Verbindung zur Außenwelt. Eine übermäßige Dynamik, definiert durch Ausmaß, Häufigkeit oder Periodizität, kann sich jedoch negativ auf die Nutzer auswirken, beispielsweise auf Schüler in Klassenzimmern. Daher können Fensterausblicke, die kurze Momente des Interesses bieten, ohne übermäßig abzulenken, von Vorteil sein. Dies wirft Fragen hinsichtlich des gewünschten Gleichgewichts der Bewegung innerhalb einer Szene auf.”
Ich erinnere mich noch sehr gut, wie Roessler die Bedeutung der Veränderlichkeit der Außenwelt untersuchte. Die drei Szenarien, die Roessler untersuchte, waren eine dunkle Mauer des benachbarten Gebäudes, der Blick auf einen Kanal, an dessen Ufern nur wenige Menschen spazieren gingen, und der Blick auf den verkehrsreichsten Platz in Berlin. Sowohl die Mauer als auch der Platz erwiesen sich als ungeeignet, um positive Wirkungen hervorzurufen. So lautete das Ergebnis: Ein Ausblick müsse eine mittlere zeitliche Verschiedenheit aufweisen. Roessler präsentierte dieses Ergebnis in 1971 auf eine Sondertagung der LiTG. Mehr als ein Schmunzeln konnte er damit nicht ernten, der Kongress war eher darauf aus, fensterlose Räume zu diskutieren.
Für den “Zugang” müsste es eine akzeptierte Methode geben. Basierend auf der Gestaltung der Fenster (z. B. Größe, Seitenverhältnis) und der Position des Betrachters im Raum können Designer die Größe des Fensterausblicks berechnen. Basierend auf der Gestaltung der Fenster (z. B. Größe, Seitenverhältnis) und der Position des Betrachters im Raum können Designer die Größe des Fensterausblicks berechnen.
Diesbezügliche Fragen wurden schon zu meiner Studienzeit in den 1960ern beim BRI (Building Research Institute) diskutiert. Sollen die Fenster eher breit sein oder eher hoch? Viele Gebäude der 1970er, deren Architekten breit bevorzugten, wurden als Schießschartenarchitektur verspottet. Derzeit werden in Berlin viele Gebäude mit hohen, schmalen Fenstern gebaut. Die ASR 7.1 1976 spezifizierte technische Details. Ihr Nachfolger, ASR A3.4 2023, geht auf die relevanten Aspekte sehr detailliert ein. Wer nach dieswer ASR baut oder einrichtet, kann sichergehen, dass sämtliche Details zwischen den Sozialpartnern grundlegend diskutiert worden sind.
DIN EN 17037 nimmt hierzu die “horizontale Sichtbreite” zum Maßstab, also die Breite des Sichtfelds.
Richtig knifflig wird es mit den sog. Fassadenfunktionen. Wenn man die Frage, ob die Fenster eher hoch oder eher breit sein sollen, salomonisch löst und einfach große Fenster baut, kann man sich ein Energieproblem ins Haus holen. So gilt ein Tageslichtquotient von 10 oder mehr als Garant für thermische Probleme. Hinzu kommt die Blendung. Diese kann man zwar mit Sonnenschutzeinrichtungen mildern. Die stören aber die Sichtverbindung.
Wählt man gar eine radikale Methode und verspiegelt die Fassade, kann man die ganze Umgebung belästigen. In der Masse durchgefärbte Gläser, die einst sehr in waren, haben sich in der Sonne aufgewärmt, so dass man ihre warmen Strahlen noch abends genießen konnte. Waren die Fassaden bläulich, konnte man viele Stunden des Tages in einer Gewitterstimmung verbringen. So habe ich in die Norm DIN EN ISO 9241-6 „Leitsätze für die Arbeitsumgebung“ folgenden Satz aufgenommen: „Fensterbehandlungen [gemeint sind Lichtschutzeinrichtungen], die zur Begrenzung der Blendung eingesetzt werden, sollten weder das Farbklima des Arbeitsplatzes noch das visuelle Erscheinungsbild der Außenwelt beeinflussen.“ In der letzten Fassung von ASR A3.4 wird deutlicher formuliert, wann der Arbeitgeber seine Pflicht mit der Sichtverbindung diesbezüglich ordnungsgemäß erfüllt hat:
„4.2 Als Sichtverbindung dienende Fenster, Türen oder Wandflächen
4.2.1 Beschaffenheit
(1) Die Flächen der Sichtverbindung müssen eine verzerrungsfreie und farbneutrale Durchsicht ermöglichen. Als farbneutral gelten Materialien mit einer Qualität der Farbwiedergabe Ra ≥ 90. Als verzerrungsfrei gelten Materialien, durch die hindurch in 10 m Entfernung das Gesicht einer Person zugeordnet werden kann.
(2) Sonnen-, Blend- und Sichtschutzsysteme gelten dann nicht als Einschränkung der Sichtverbindung, wenn diese rückziehbar sind. Sie sollen von den Beschäftigten beeinflussbar sein. …“
Recht und kreativer Umgang damit
Das deutsche Recht hat aufgrund von Erfahrungen über ein Jahrhundert mit der Frage des „Ausblicks“ etliche Pflöcke gerammt, die nichts weniger im Sinn haben, als Sicherheit und sozialen Frieden zu sichern. So dienen die Abstandflächen nicht einem psychologischen Bedürfnis nach Schutz vor Einmauerung. Es geht auch um Belüftung von Aufenthaltsräumen und Brandschutz. Die Regeln verhindern auch, dass man dem Nachbarn buchstäblich „auf den Teller schauen“ kann, was die psychosoziale Kommunikation (Privatsphäre vs. Teilhabe) regelt.
Für Neubauten gibt es ein “Gebot der Rücksichtnahme”. Dieses Gebot ist nicht in einem einzelnen Paragraphen festgeschrieben, sondern leitet sich aus dem Baugesetzbuch (BauGB) ab. Ein Bauvorhaben ist unzulässig, wenn es eine „erdrückende Wirkung“ entfaltet. In den Landesbauordnungen ist festgelegt, dass Aufenthaltsräume unmittelbar ins Freie führende Fenster von ausreichender Größe haben müssen. Diese können auch Fluchtwege sein.
Um heutige Regelwerke wie Gesetze oder Normen zu verstehen, sollte man weit in die Vergangenheit gucken, denn die Probleme sind nicht neu. Sie treffen auch nicht immer andere, sie können morgen früh akut werden, wenn der Nachbar anfängt zu bauen. Einige wichtige Etappen in dem Kampf um Licht in den Städten und Wohnungen, habe ich in Genesis 2.0 dargestellt, so z.B.
Krankheiten der Finsternis - Geschichten aus New York und Chicago
Nichts geht ohne Vorschriften …
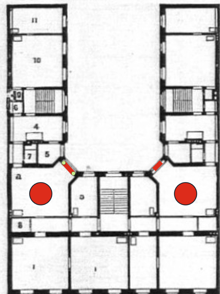
Die Menschen haben zuweilen einen sehr kreativen Umgang mit den Vorschriften an den Tag gelegt. So auch mit der Vorschrift in New York, dass jeder Wohnraum ein Fenster haben muss. Das Ergebnis war eine Gebäudeform, die auch heute noch in New York zu bewundern ist:

Die Gebäude erhielten den Namen Hundeknochen oder Hanteln wegen der Form. Die rot eingezeichneten Fenster guckten zwar ins Freie, aber wenige Meter auf der anderen Seite waren andere Fenster. Der Raum zwischen zwei Hundeknochen war ein Schacht, der bald voll Müll war. So hat man dem Gesetz genüge getan. Aber viel Licht kam nicht in die Wohnungen, weil Licht in einem Schacht nur eine Richtung kennt, nach unten. Bei den schräg eingezeichneten Fenstern konnte man sich die Hand reichen.
In Berlin wurden die Häuser in dem Wilhelminischen Mietkasernengürtel nach anderen Gesetzen optimiert. Die gegenüberstehenden Häuser durften nur so hoch sein, dass ein Haus beim Umfallen nicht das andere treffen konnte. Jedes Haus hatte die gerade nötige Fassadenlänge, weil die Besteuerung danach erfolgte. Nach hinten wurden zwei oder drei breitere Häuser gebaut, mit Höfen dazwischen, die groß genug waren, dass eine Feuerwehrspritze darin drehen konnte.
Eine Einrichtung in diesen Häusern, das Berliner Zimmer, sollte sogar eine Rolle in der Kommunistischen Weltrevolution spielen. Das Berliner Zimmer hat seine Ursprünge bereits im 18. Jahrhundert. Mit der zunehmenden Verdichtung der Berliner Innenstadt wurden Grundstücke immer tiefer bebaut. Zunächst entstanden freistehende Seitenflügel, die nach und nach näher an das Vorderhaus heranrückten. Als Vorderhaus und Seitenflügel schließlich aufeinandertrafen, entstand an dieser Schnittstelle das Berliner Zimmer als Verbindungsglied zwischen den beiden Gebäudeteilen. Das Berliner Zimmer ist eine Besonderheit des Berliner Wohnungsbaus ab Mitte des 19. Jahrhunderts bis zum Verbot der Hinterhofbebauung im Jahr 1925. Es ist ein Durchgangszimmer, das das Vorderhaus mit dem Seitenflügel eines Gebäudes bzw. den Seitenflügel mit dem Hinterhaus verbindet. Es handelt sich um einen großen Raum, der trotz seiner Größe nur über ein einziges Eckfenster verfügt, das zum Hof hinausgeht und daher, vor allem in den unteren Stockwerken, wenig Licht spendet. Entsprechend schlecht ist auch die Belüftung.
Das hatte Friedrich Engels zu dem Spruch angeregt: „Hier in Berlin hat man das ‚Berliner Zimmer‘ erfunden, mit kaum einer Spur von Fenster, und darin verbringen die Berliner den größten Teil ihrer Zeit.“ In einem Brief beschrieb er das Berliner Zimmer[i] als „diese in der ganzen anderen übrigen Welt unmögliche Herberge der Finsternis, der stickigen Luft, & des sich darin behaglich fühlenden Berliner Philistertums. Dank schönstens!
Die Lage des Berliner Zimmers und seines Fensters ist in dem Bild rot eingezeichnet.

Weitere Literatur
Zum Workshop und deren Teilnehmern:
Ko, W. H., Schiavon, S., Altomonte, S., Andersen, M., Batool, A., Browning, W., … Wienold, J. (2022). Window View Quality: Why It Matters and What We Should Do. LEUKOS, 18(3), 259–267. https://doi.org/10.1080/15502724.2022.2055428
Ko, W. H., Kent, M. G., Schiavon, S., Levitt, B., & Betti, G. (2022). A Window View Quality Assessment Framework. LEUKOS, 18(3), 268–293. https://doi.org/10.1080/15502724.2021.1965889
Matusiak, B. S., & Klöckner, C. A. (2016). How we evaluate the view out through the window. Architectural Science Review, 59(3), 203–211. https://doi.org/10.1080/00038628.2015.1032879
Meng, X., & Wang, M. (2025). Exploring the health impacts of window views: a literature review. Journal of Asian Architecture and Building Engineering, 24(6), 5080–5103. https://doi.org/10.1080/13467581.2024.2412120
Kim, J., Kral, K., Ko, W. H., Kent, M., Schiavon, S., & Dogan, T. (2025). Window View Satisfaction Assessment Method: A Comparison of Physical Space, Virtual Reality, and Digital Image. LEUKOS, 1–32. https://doi.org/10.1080/15502724.2025.2528893
Abd-Alhamid, F., Kent, M., & Wu, Y. (2024). Assessment of Window Size and Layout Impact on a View Quality Perception in a Virtual Reality Environment. LEUKOS, 20(3), 239–260. https://doi.org/10.1080/15502724.2023.2262148
Zu Aussagen über die Situation in Deutschland
Sichtverbindung nach außen ASR 7/1 § 7/1 der Arbeitsstättenverordnung
DIN EN 17037 Tageslicht in Gebäuden
Zu DIN EN 17037 Tageslicht in Gebäuden
Jakobiak, R.A. Planungshinweise zur Innenraumbeleuchtung mit Tageslicht im Kontext staatlicher Regelwerke und normativer Kriterien, LiTG-Publikation, 2025 (zum download)


Eine Antwort auf „Sichtverbindung und Ausblick: Bedeutung, Faktoren, Qualität und was wir sonst kennen“